Ashlar, South Meadow Road, Northampton NN5

3 beds 2 baths 1 receptions
Price: £207,000

Property Description

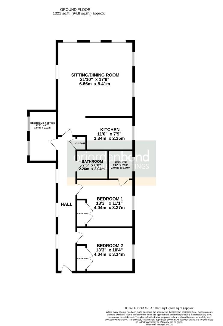
Offered to the market with no onward chain is this spacious and well presented three bedroom apartment. Located within the desirable area of St. Crispin, the property is set on the first floor within the block with accommodation comprising entrance hall, sitting/dining room, kitchen with integrated appliances, three double bedrooms with the master benefitting from an ensuite and a family bathroom. Benefits include electric heating, double glazing, secure intercom entry system and two allocated parking spaces within a gated car park. (C/1021/-)

Leasehold information:

* Lease Remaining - 107 years (as of 2026)
* Ground Rent - £250 per annum
* Service Charge - £2835 per annum

* TENURE - Leasehold
* COUNCIL TAX BAND - D

Quick Summary

Property ID34323388
Property statusFor Sale
LocationAshlar, South Meadow Road, Northampton NN5
Bedrooms3
Bathrooms2

Map

Energy Performance Certificate (EPC)

EPC Rating

Contact Agent

Interested in this property? Contact us to arrange a viewing.

Enquire Now